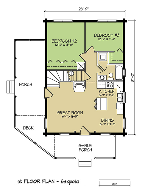
Sequoia
Total Living: 1439 SQ.FT.
Main Floor: 962 SQ.FT.
Upper Floor: 477 SQ.FT.
Bedrooms: 1
Bathrooms: 2

All kits can be customized, these are base kits only.

What Log Home Kit Owners Think

★★★★★

“We couldn’t be happier with our whole experience with Michigan Log & Timber. Highly recommend this company and truly appreciate the knowledge, craftsmanship, & promptness of this team. We love our new home!”

★★★★★

“We are delighted with our new home. Andrew worked with us to make our floor plan work within our budget. Everyone was very professional and responsive to our needs and wishes. Love our home.”

Log Home Kits

How It Works

Building your dream home should feel exciting, not overwhelming. At Michigan Log and Timber, we've streamlined the process so you can go from floor plan to front door with confidence. Whether you're building it yourself or working with a contractor, our expert team is here to support you every step of the way.

1. Choose Your Floorplan

Start by browsing our collection of hand-crafted log home designs. Whether you're dreaming of a lakeside cabin or a full-time rustic retreat, we have plans in a range of sizes and styles to match your vision.

2. Customize & Get a Quote

Want to adjust layouts, windows, or roofing? No problem. We'll tailor the kit to your needs and provide a transparent quote that includes delivery and build guidance.

3. Finalize Plans & Prep Your Site

Once approved, we’ll produce your full construction drawings and walk you through site preparation. From permits to land clearing, we’re here to help you plan ahead.

4. Your Kit Arrives — Time to Build

Your precision-milled log home kit is shipped to your site, ready for assembly. Whether you're a DIYer or working with a contractor, you’ll have everything you need to bring your log home to life.

Request a Quote

Build Your Dream Home